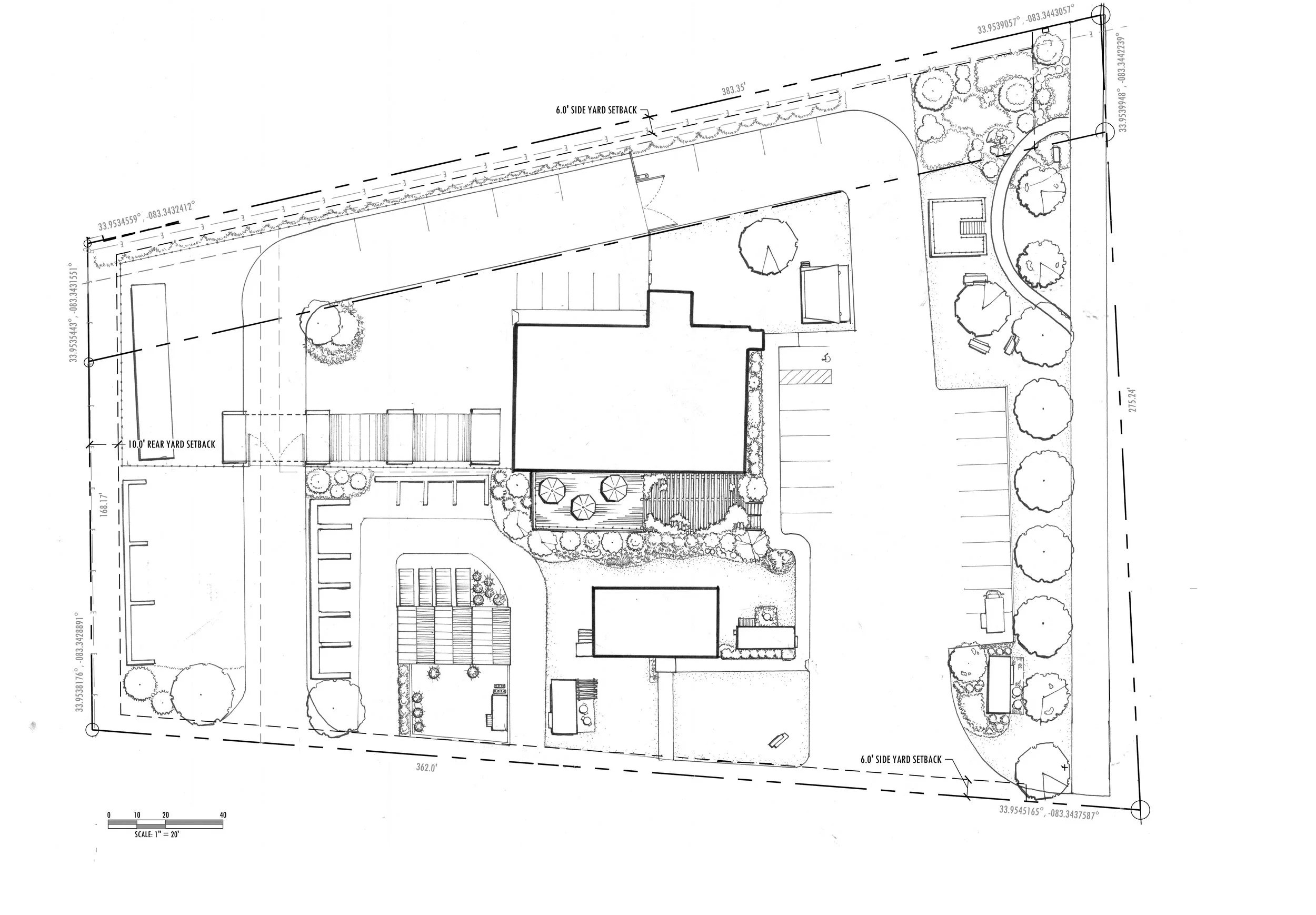
The Worx Ship is a trades-focused co-working space designed to support local builders, small-scale production businesses and the wider trades community. Located in Athens, GA, the project balances functional site organization to create a flexible. work-ready environment.

BIG ideas require a clear actionable picture. Services provided include site planning, zoning analysis. and design consultation services.

The Worx Shop

Next
Next

Trail Fronting Winterville Development